舞蘭邸

新居・仮 舞蘭邸の建物概要。
随時更新


別ページ→  家(元世界)  旧舞蘭邸(異界での最初の家)



旧邸との位置関係。
度々更新されます。
クリックすると元の大きさの絵に…


 フレイドの住宅街…ではなく、ちょっと家が少ないだろう土地。郊外。
 旧舞蘭邸より北側に位置し、建物自体は小さい。
 元舞蘭邸の離れの建物はそのまま。
 屋敷建て替えの間or今後もそのまま住む為に建てた家。
 新築万歳。
 防音・防犯その他も完璧。夏は涼しく、冬は暖かい。
 
 表札には大きく「舞蘭」と書かれた表札。
 その下に「ドルファーク」とも書かれています。
 舞蘭兄弟と家は別になりましたが、郵便とかは変わらないので表札はそのまま。
 地上四階建ての家。
 
建物の現在位置関係。
度々更新されます。
クリックすると元の大きさの絵に…


 池、離れの建物はそのまま。
 旧屋敷の時の、三階から出入りが可能な渡り廊下は今は無い。
 手前最も南の建物は、殆どダージュの私物と化している。
 一階は物置。術、魔法関係であまり使わないものは、ここに保管されている。
 二階は書庫。あまり読まないもの、重い魔道書とかはここ。
 三階は実験室。奥の建物にフェルが居る時は、ダージュはこちらにいる。
 四階は強化され、術の練習場となっている。主にツァリーア、ダージュが使用。

 奥の向かって左下の建物は、手前の建物より少し小さめ。
 一階は物置。単なる物置。
 二階は書庫。あまり読まないものはここに。
 三階は実験室。ダージュが色々試している部屋はここ。
 四階は強化され術の練習場。主にフェルが使用。何故か遊び場になっている。

 庭には花が多いです。しかも蒼い花。淡い色の花が多い。
 桜、沈丁花、林檎、金木犀などの木も植わっている。
 花壇の世話はダージュやエフェルター、ラウトが趣味で行う。
 庭木の手入れは、定期的にアルがやっていたりする。
 
 
その他
 渡り廊下は、普段は不可視のトンネル状の結界がある。
 通りぬけは可能だが、あまりにも強い風や雨などは遮断する(風は、勢いを弱める)
 道の上を歩くのであれば、雨の際にも傘などは必要無い。
 敷地全体を覆う結界も、自然・天候には干渉しない。
 やはり強すぎる雨風、地震などは弱める事も可能。
 出入り口や窓などの付近は、庭の渡り廊下と同じく、
 人が快適にすごせる程度に、天候等の影響を調節。
 
 渡り廊下部分の敷石は、仄かに光を発する石を使用。
 撥水性もよく、滑り難いのも特徴。
 ちなみに、各建物入り口にはこの石で作られたランプが存在する。
 ベランダや窓などにも同じように、この石で作られたランプや、飾りがはめ込まれ、
 それぞれ、人が近付くと、淡い蒼白色の光が内部に灯る。
 庭や廊下にある照明も、同じモノを使用。

 
度々更新されます。
クリックすると元の大きさの絵に…
絵は、クリックすると元の大きさで表示されます。


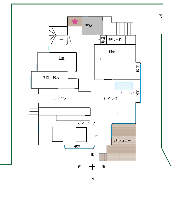
一階
 
 共有スペース。基本的に、和室など以外の床はフローリング。
 共有部はライトブラウンなどの明るい木。全体として柔らかな明るい雰囲気で統一。
 リビング・ダイニング・キッチン・浴室や和室がある。
 洗面所には、全自動乾燥機つき洗濯機がある。
 オーブンやら巨大冷蔵庫やら、キッチン設備はなかなかのもの。
 床下収納も充実。
 バルコニーがある側は全面ガラス窓。
 窓が多く、庭が良く見える為、時々ツァリーアがぼ〜っと外見てる。
 家族が集まる場所。
 勝手口から庭に出ることも可能。
 
 ソファにはリューハ。夜は、ほぼ確実にここに居る。
 昼間はツァリーアなどが居る場所。
 ツァリーアは自室よりも、ここに居る事の方が多いかも?
 和室は、お客様やユーラの泊まる場所にもなる。
度々更新されます。
クリックすると元の大きさの絵に…


二階
 
 部屋は大きく分けて4つ。
 ツァリーア、ダージュ、エフェルター、ファナ、六気、黎銖の部屋がある。
 フェル、ダージュの部屋に出窓はあるが、ベランダなどは無し。
 
 昼間はほぼ無人。
 黎銖は、寝る時に部屋を使用する程度。
 ダージュも、ここに居ることは殆どない。
度々更新されます。
クリックすると元の大きさの絵に…


三階
 
 部屋は大きく分けて4つ。
 ツァーク、ラウト、ティエラ、レンの部屋がある。
 バルコニーあり。
 実家のドルファーク邸と、部屋の雰囲気に変化が無いのが特徴。
 
 子供たちは、ホール部分で遊ぶことが多い。
 ミンシャが泊まる時は、この階か和室になる。
 
度々更新されます。
クリックすると元の大きさの絵に…


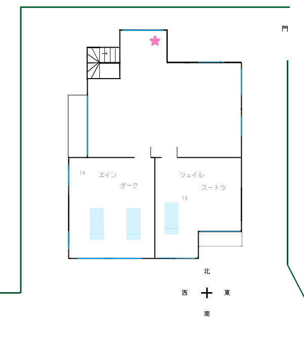
四階
 
 部屋は2部屋。その他の部分は、広いホールになっている。
 ツェイル、エイン、ダークの部屋。
 ベランダがある。
 エインはフレイド、ダークも自分の世界に居るので、住んでいるのはツェイルとスートラ。
 ヴァンサーグ、にゅうる、ベルグラ、泪璃、トゥルス、メイ、タルトも居る。
 
 空調設備も整っている家なので、雨の日や暑い日には子供たちの遊び場となる。
 梁の部分で遊び、怒られることも…。

度々更新されます。
クリックすると元の大きさの絵に…


舞蘭家
 
 二階建ての建物です。
 兄・ダリュカが二階に、弟レンが一階に住んでます。
 ただ、現在は兄は家に居らず、レンも上の仮屋敷の三階の部屋に居たり。
 
 






≪≪